











Данные об объекте: №21154
![]() |
Название: | Продажа - Квартира 35 m² в Халкидиках |
| Тип: | Квартира | |
| Стадия: | Построенное | |
| Год сдачи: | 2026 |
![]() |
Cтрана: | Греция |
| Регион: | Халкидики | |
| Местность: | Халкидики/другое |
![]() |
Кол-во комнат: |
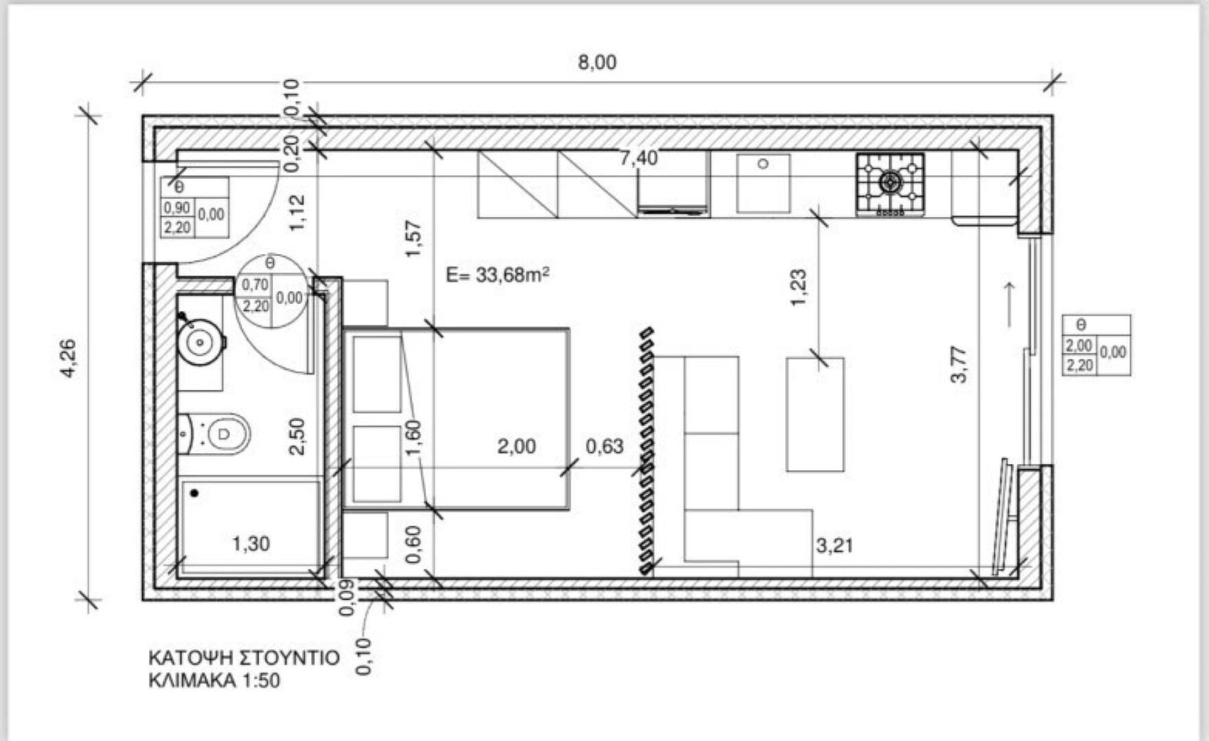
| Площадь: | 35 m² |
![]() |
До моря: | 780 m |
| До города: | 1 km | |
| До аэропорта: | 28 km |
![]() |
|
Этаж:
0 этаж
Количество комнат:
Комнаты: 1, Ванные комнаты: 1
Дата последнего изменения:
18-09-2025
|
Продается квартира площадью 35 кв.м в Халкидиках на стадии строительства. Квартира расположена на первом этаже и состоит из гостиной с кухней, одной душевой комнаты. У объекта есть солнечные батареи для нагрева воды, кондиционер. В распоряжении владельцев общий бассейн на территории.
Заинтересовал этот либо другой объект? Компания GrekHome предлагает услугу - обзорная поездка в Грецию.
Самый большой выбор недвижимости в Греции:
Обращайтесь и Ваш персональный менеджер поможет сделать Вам правильный выбор!
Киев: |
Днепр: |
Greece: |
|||
|---|---|---|---|---|---|
+38044 223 34 45 |
+38056 789 20 07 |
Saloniki:Halkis st.8 | +302310 591431 | ||
+38097 275 33 33 |
+38098 696 39 79 |
Athens:Nikis st.43 | +302103 254150 | ||
ул. Мечникова 16 оф. 4-7 |
пр. Д. Яворницкого 5 |
Halkidiki:Nikiti str. 63088 | +3023750 20330 | ||
GrekHome 2025 © Все права защищены.
Копирование информации только с разрешения администрации.