











Данные об объекте: №21794
![]() |
Название: | Продажа - Таунхаус 95 m² на Тасосе |
| Тип: | Дом | |
| Стадия: | Построенное | |
| Год сдачи: | 2025 |
![]() |
Cтрана: | Греция |
| Регион: | о. Тасос |
![]() |
Кол-во комнат: | 3 |
| Площадь: | 95 m² | |
| Площадь участка: | 1069 m² |
![]() |
До моря: | 150 m |
| До аэропорта: | 25 km |
![]() |
|
Кол-во этажей:
2 этажей
Количество комнат:
Комнаты: 4, Ванные комнаты: 2, Спальни: 3
Дата последнего изменения:
18-09-2025
|
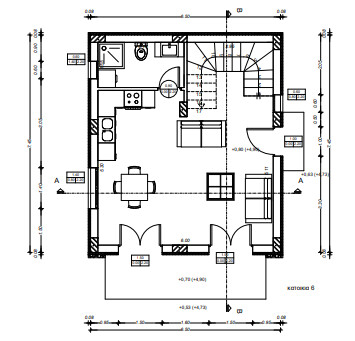
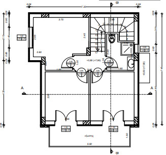
Продается таунхаус площадью 95 кв.м на острове Тасос на стадии строительства. Таyнхаус расположен на 2 уровнях. Первый этаж состоит из гостиной с кухней, одной душевой комнаты. Мансардный этаж состоит из 3 спальных комнат, одной душевой комнаты. Таунхаус имеет угловое расположение. Из окон открывается вид на море, на горы, на город, на лес. У объекта есть солнечные батареи для нагрева воды, кондиционер, отопление.
Заинтересовал этот либо другой объект? Компания GrekHome предлагает услугу - обзорная поездка в Грецию.
Самый большой выбор недвижимости в Греции:
Обращайтесь и Ваш персональный менеджер поможет сделать Вам правильный выбор!
Киев: |
Днепр: |
Greece: |
|||
|---|---|---|---|---|---|
+38044 223 34 45 |
+38056 789 20 07 |
Saloniki:Halkis st.8 | +302310 591431 | ||
+38097 275 33 33 |
+38098 696 39 79 |
Athens:Nikis st.43 | +302103 254150 | ||
ул. Мечникова 16 оф. 4-7 |
пр. Д. Яворницкого 5 |
Halkidiki:Nikiti str. 63088 | +3023750 20330 | ||
GrekHome 2025 © Все права защищены.
Копирование информации только с разрешения администрации.