






Данные об объекте: №22124
![]() |
Название: | Продажа - Гостиница 730 m² на Олимпийской Ривьере |
| Тип: | Прочие | |
| Стадия: | Построенное | |
| Год сдачи: | 2016 |
![]() |
Cтрана: | Греция |
| Регион: | Олимпийская Ривьера |
![]() |
Кол-во комнат: |
| Площадь: | 730 m² | |
| Площадь участка: | 500 m² |
![]() |
До моря: | 200 m |
| До аэропорта: | 100 km |
![]() |
|
Кол-во этажей:
3 этажей
Количество комнат:
Комнаты: 16
Дата последнего изменения:
18-09-2025
|
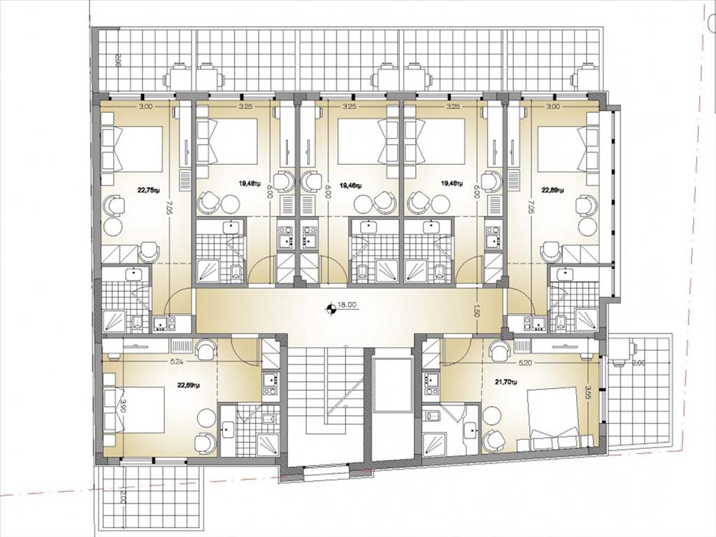
Продается гостиница в популярном курорте Олимпийской Ривьеры. Трехэтажная гостиница владеет 16 полностью оборудованными номерами. Все номера мебелированны и оснащены кондиционерами, имеются слнечные панели для нагрева воды. Гостиница была построена в 2016 году. В пешей доступности распологается все инфраструктура курорта и организованный пляж.
Заинтересовал этот либо другой объект? Компания GrekHome предлагает услугу - обзорная поездка в Грецию.
Самый большой выбор недвижимости в Греции:
Обращайтесь и Ваш персональный менеджер поможет сделать Вам правильный выбор!
Киев: |
Днепр: |
Greece: |
|||
|---|---|---|---|---|---|
+38044 223 34 45 |
+38056 789 20 07 |
Saloniki:Halkis st.8 | +302310 591431 | ||
+38097 275 33 33 |
+38098 696 39 79 |
Athens:Nikis st.43 | +302103 254150 | ||
ул. Мечникова 16 оф. 4-7 |
пр. Д. Яворницкого 5 |
Halkidiki:Nikiti str. 63088 | +3023750 20330 | ||
GrekHome 2025 © Все права защищены.
Копирование информации только с разрешения администрации.