


















Данные об объекте: №22125
![]() |
Название: | Продажа - Коттедж 21 m² в пригороде Салоник |
| Тип: | Дом | |
| Стадия: | Построенное | |
| Год сдачи: | 2025 |
![]() |
Cтрана: | Греция |
| Регион: | Салоники | |
| Местность: | Салоники/пригород |
![]() |
Кол-во комнат: |
| Площадь: | 21 m² |
![]() |
|
Количество комнат:
Комнаты: 1
Дата последнего изменения:
18-09-2025
|
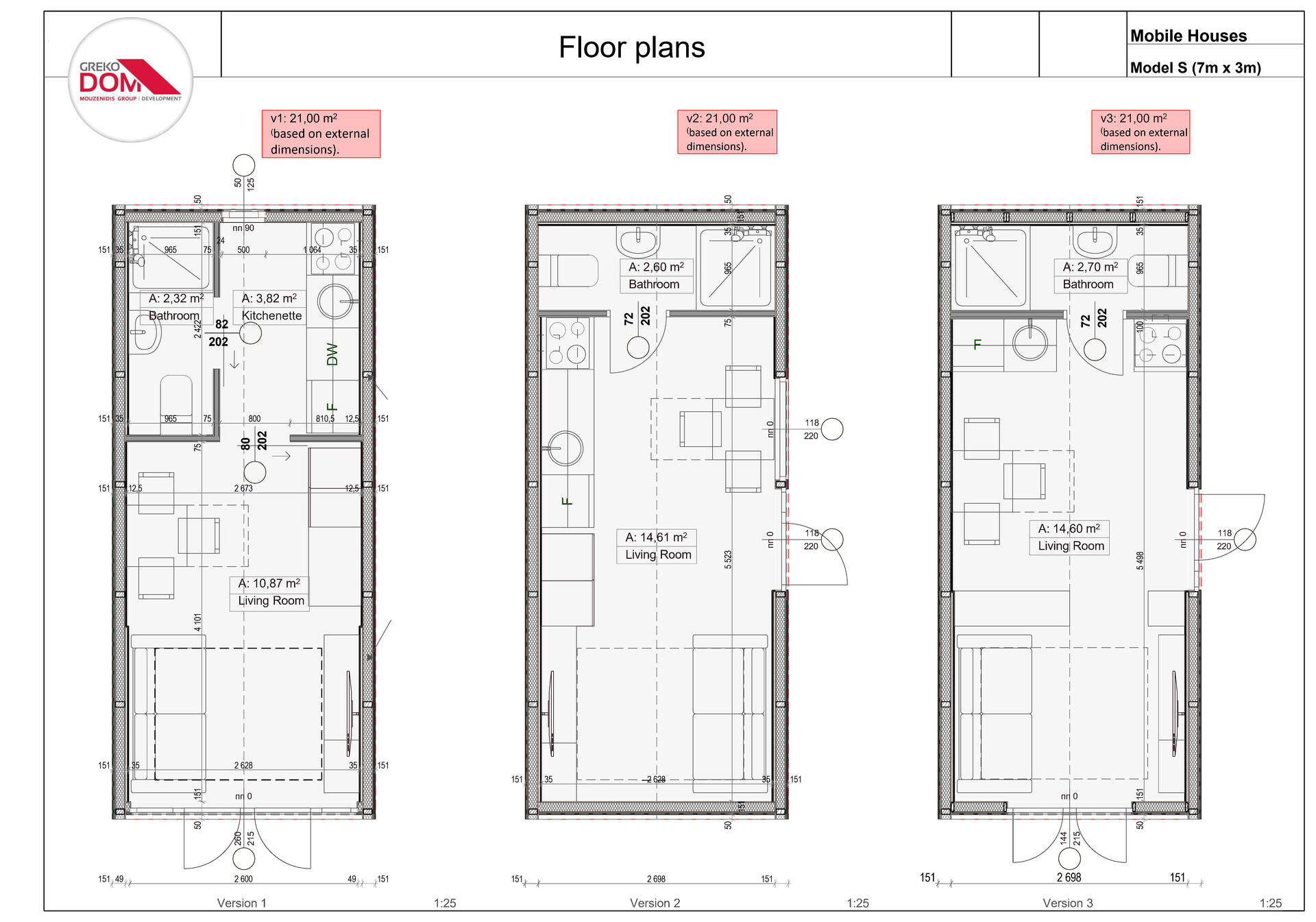
Сборный дом 21 кв.м
Год постройки: 2025
Количество комнат: 1
Описание
Выбирая сборный дом, вы получаете быстрое строительство, высокое качество и экономию затрат, позволяющие вам сразу въехать в новое жильё без долгого ожидания. Благодаря отличной тепло- и звукоизоляции вы наслаждаетесь комфортом и снижаете эксплуатационные расходы. Пространство 21 кв.м (7м x 3м) идеально подходит как для постоянного, так и для дачного проживания.
Особенности
• Гостиная-кухня в стиле студии: Единое пространство, объединяющее кухню и зону отдыха, создающее идеальную атмосферу для повседневной жизни и незабываемых моментов с семьёй и друзьями.
• Отдельная ванная комната: Наслаждайтесь комфортом и уединением в независимом помещении, созданном для всех ваших потребностей.
• Двойная изоляция: Каменная вата толщиной 2 см, пенополистирол EPS 10 см и дополнительные четырёхсезонные стеклопакеты обеспечивают отличную теплоизоляцию.
Идеально для:
• Дачных домов
• Жилья для рабочих
• Офисов и коммерческого использования
• Временного проживания во время ремонта или переезда
Важно: В цену входит транспортировка. Указанные цены не включают НДС и внутреннюю отделку.
Основание (фундамент) обеспечивает покупатель.
Если вы хотите внутреннюю отделку (электрика, водопровод, гипсокартон, плитка, ванная, мебель и т. д.) — свяжитесь с нами.
Важно: В Греции сборные дома, установленные на постоянное основание, требуют строительного разрешения.
Заинтересовал этот либо другой объект? Компания GrekHome предлагает услугу - обзорная поездка в Грецию.
Самый большой выбор недвижимости в Греции:
Обращайтесь и Ваш персональный менеджер поможет сделать Вам правильный выбор!
Киев: |
Днепр: |
Greece: |
|||
|---|---|---|---|---|---|
+38044 223 34 45 |
+38056 789 20 07 |
Saloniki:Halkis st.8 | +302310 591431 | ||
+38097 275 33 33 |
+38098 696 39 79 |
Athens:Nikis st.43 | +302103 254150 | ||
ул. Мечникова 16 оф. 4-7 |
пр. Д. Яворницкого 5 |
Halkidiki:Nikiti str. 63088 | +3023750 20330 | ||