


















Данные об объекте: №22209
![]() |
Название: | Продажа - Комплекс 1040 m² на Ситонии (Халкидики) |
| Тип: | Прочие | |
| Стадия: | Построенное | |
| Год сдачи: | 2025 |
![]() |
Cтрана: | Греция |
| Регион: | Халкидики | |
| Местность: | Ситония |
![]() |
Кол-во комнат: |
| Площадь: | 1040 m² | |
| Площадь участка: | 2022 m² |
![]() |
До моря: | 570 m |
| До аэропорта: | 91 km |
![]() |
|
Дата последнего изменения:
18-09-2025
Парковка:
✓
|
Продается комплекс площадью 1040 кв.м на полуострове Ситония, региона Халкидики. Комплекс имеет угловое расположение. Из окон открывается вид на город. У объекта есть солнечные батареи для нагрева воды, кондиционер, зона барбекю. Недвижимость продается с мебелью. К недвижимости относится парковочное место, сад. В распоряжении владельцев общий бассейн на территории.
Ознакомьтесь с Oniro Residence
Новый проект Oniro Residence расположен в живописном городке Никити, на втором полуострове Халкидики. Современный дизайн сочетается с безмятежным прибрежным стилем жизни. Этот проект находится всего в 570 метрах от моря и в 600 метрах от центра города, предлагая одновременно удобство и спокойствие.
Комплекс состоит из:
16 апартаментов
1 бассейн
2 зоны для барбекю
Парковочные места
Дополнительные функции:
Квартира 1
Статус: Доступно
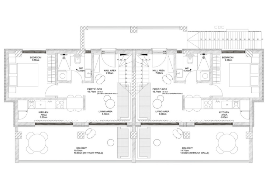
Тип: Первый этаж (1 уровень)
Планировка:
Квартира 2
Статус: Доступно
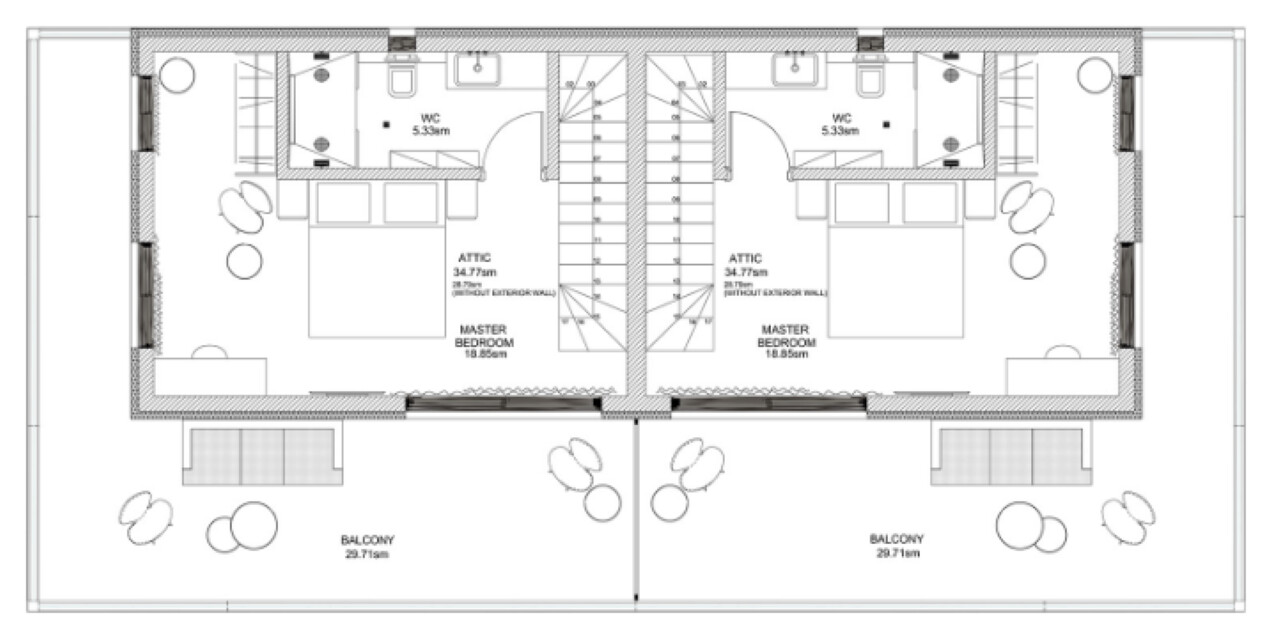
Тип: Второй этаж + мансарда (2 уровня)
Планировка:
Заинтересовал этот либо другой объект? Компания GrekHome предлагает услугу - обзорная поездка в Грецию.
Самый большой выбор недвижимости в Греции:
Обращайтесь и Ваш персональный менеджер поможет сделать Вам правильный выбор!
Киев: |
Днепр: |
Greece: |
|||
|---|---|---|---|---|---|
+38044 223 34 45 |
+38056 789 20 07 |
Saloniki:Halkis st.8 | +302310 591431 | ||
+38097 275 33 33 |
+38098 696 39 79 |
Athens:Nikis st.43 | +302103 254150 | ||
ул. Мечникова 16 оф. 4-7 |
пр. Д. Яворницкого 5 |
Halkidiki:Nikiti str. 63088 | +3023750 20330 | ||