
































Данные об объекте: №22292
![]() |
Название: | Продажа - Коттедж 60 m² на Ситонии (Халкидики) |
| Тип: | Дом | |
| Стадия: | Построенное |
![]() |
Cтрана: | Греция |
| Регион: | Халкидики | |
| Местность: | Ситония |
![]() |
Кол-во комнат: | 2 |
| Площадь: | 60 m² | |
| Площадь участка: | 500 m² |
![]() |
До моря: | |
| До аэропорта: | 140 km |
![]() |
|
Количество комнат:
Комнаты: 3, Ванные комнаты: 1, Спальни: 2
Дата последнего изменения:
18-09-2025
Парковка:
✓
|
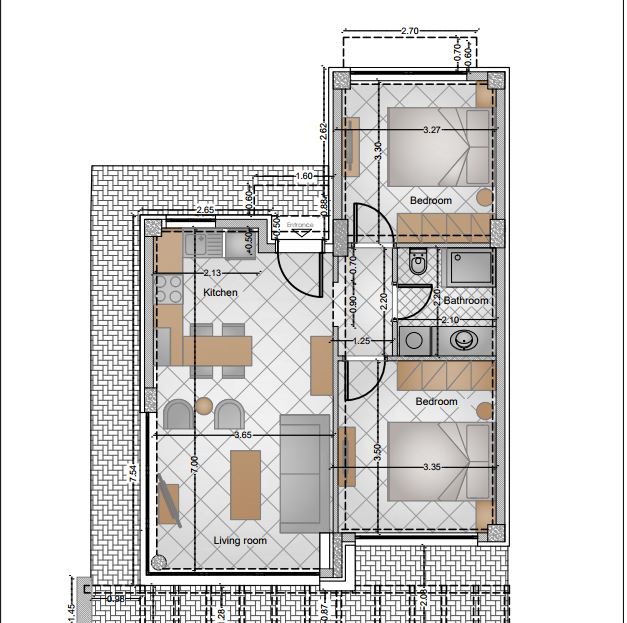
Продается 1-этажный коттедж площадью 60 кв.м на полуострове Ситония, региона Халкидики. Коттедж состоит из 2 спальных комнат, гостиной с кухней, одной душевой комнаты. Из окон открывается великолепный вид на море. У объекта есть солнечные батареи для нагрева воды, зона барбекю, отопление. Недвижимость продается с мебелью. К недвижимости относится парковочное место, сад.
Проект «НИМФА 1» в Криарици
Одноэтажный дом площадью 60 м2 комфортно соединил в себе общее пространство, функционально деленное на кухню и гостиную, а также планировочно обособленные 2 спальные комнаты с общей ванной комнатой. Из гостиной и спальных комнат имеются выходы на просторные террасы.
Выстален на фотографии дом продан, можно построить аналогичный проект по запросу.
Заинтересовал этот либо другой объект? Компания GrekHome предлагает услугу - обзорная поездка в Грецию.
Самый большой выбор недвижимости в Греции:
Обращайтесь и Ваш персональный менеджер поможет сделать Вам правильный выбор!
Киев: |
Днепр: |
Greece: |
|||
|---|---|---|---|---|---|
+38044 223 34 45 |
+38056 789 20 07 |
Saloniki:Halkis st.8 | +302310 591431 | ||
+38097 275 33 33 |
+38098 696 39 79 |
Athens:Nikis st.43 | +302103 254150 | ||
ул. Мечникова 16 оф. 4-7 |
пр. Д. Яворницкого 5 |
Halkidiki:Nikiti str. 63088 | +3023750 20330 | ||