































Данные об объекте: №22787
![]() |
Название: | Продажа - Вилла 110 m² в пригороде Кавалы |
| Тип: | Дом | |
| Стадия: | Построенное | |
| Год сдачи: | 2024 |
![]() |
Cтрана: | Греция |
| Регион: | Кавала | |
| Местность: | Пригород Кавалы |
![]() |
Кол-во комнат: | 3 |
| Площадь: | 110 m² | |
| Площадь участка: | 150 m² |
![]() |
До моря: | 250 m |
| До аэропорта: | 60 km |
![]() |
|
Бассейн:
✓
Кол-во этажей:
2 этажей
Количество комнат:
Комнаты: 4, Ванные комнаты: 3, Спальни: 3
Дата последнего изменения:
18-09-2025
Парковка:
✓
|
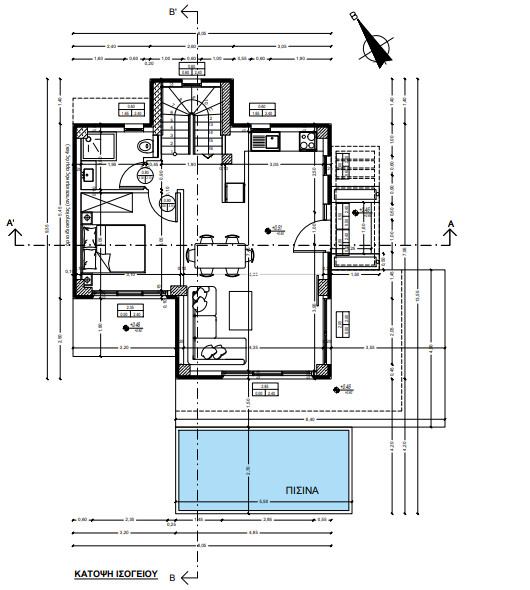
Продаются – Новые Роскошные Виллы в 250 м от Моря
Всего в 250 метрах от пляжа, в тихом и развивающемся районе с высоким спросом, предлагаются на продажу три современные двухэтажные виллы в составе частного жилого комплекса. Каждая вилла располагает частным бассейном и зеленым садом площадью 150 м².
Комплекс имеет приватную дорогу, доступ к которой имеют только жильцы, благодаря электрическим воротам с дистанционным управлением, что обеспечивает уединение, безопасность и комфорт.
Основные Характеристики Вилл
* Два этажа
* Частный бассейн
* Автономный сад 150 м²
* Просторный балкон на втором этаже
* Современный архитектурный стиль с акцентом на функциональность и естественное освещение
* Предустановка для солнечного бойлера
* Предустановка для системы центрального отопления
* Предустановка для кондиционеров (A/C)
Планировка
Первый этаж:
* Просторная гостиная с кухней (открытая планировка)
* 1 спальня
* 1 ванная с душем
* Прямой выход в сад и к бассейну
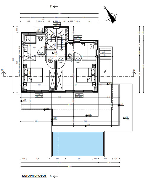
Второй этаж:
* 2 спальни, каждая с собственной ванной комнатой с душем
* Большой балкон с открытым видом
Технические Характеристики
* Раздвижные ПВХ-окна с двойным энергосберегающим остеклением, обеспечивающие тепло- и звукоизоляцию
* Недвижимость передаётся с:
* Полностью оборудованной ванной
* Полностью установленной кухней (без электроприборов)
Наличие
На продажу доступны три виллы.
У одного из объектов покупатель имеет возможность выбрать плитку, сантехнику, кухонную мебель и цвета интерьера, чтобы создать дом своей мечты.
Заинтересовал этот либо другой объект? Компания GrekHome предлагает услугу - обзорная поездка в Грецию.
Самый большой выбор недвижимости в Греции:
Обращайтесь и Ваш персональный менеджер поможет сделать Вам правильный выбор!
Киев: |
Днепр: |
Greece: |
|||
|---|---|---|---|---|---|
+38044 223 34 45 |
+38056 789 20 07 |
Saloniki:Halkis st.8 | +302310 591431 | ||
+38097 275 33 33 |
+38098 696 39 79 |
Athens:Nikis st.43 | +302103 254150 | ||
ул. Мечникова 16 оф. 4-7 |
пр. Д. Яворницкого 5 |
Halkidiki:Nikiti str. 63088 | +3023750 20330 | ||
GrekHome 2025 © Все права защищены.
Копирование информации только с разрешения администрации.