










Данные об объекте: №23367
![]() |
Название: | Продажа - Квартира 50 m² в Халкидиках |
| Тип: | Квартира | |
| Стадия: | Построенное | |
| Год сдачи: | 2025 |
![]() |
Cтрана: | Греция |
| Регион: | Халкидики | |
| Местность: | Халкидики/другое |
![]() |
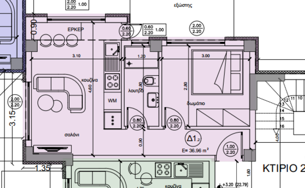
Кол-во комнат: | 1 |
| Площадь: | 50 m² |
![]() |
До моря: | 500 m |
| До аэропорта: | 30 km |
![]() |
|
Лифт:
✓
Этаж:
1 этаж
Кол-во этажей:
3 этажей
Количество комнат:
Комнаты: 2, Ванные комнаты: 1, Спальни: 1
Дата последнего изменения:
18-09-2025
Парковка:
✓
|
Продается квартира площадью 50 кв.м в Халкидиках на стадии строительства. Квартира расположена на втором этаже и состоит из одной спальной комнаты, гостиной с кухней, одной душевой комнаты. У объекта есть солнечные батареи для нагрева воды, отопление. В здании расположен лифт. К недвижимости относится парковочное место.
Заинтересовал этот либо другой объект? Компания GrekHome предлагает услугу - обзорная поездка в Грецию.
Самый большой выбор недвижимости в Греции:
Обращайтесь и Ваш персональный менеджер поможет сделать Вам правильный выбор!
Киев: |
Днепр: |
Greece: |
|||
|---|---|---|---|---|---|
+38044 223 34 45 |
+38056 789 20 07 |
Saloniki:Halkis st.8 | +302310 591431 | ||
+38097 275 33 33 |
+38098 696 39 79 |
Athens:Nikis st.43 | +302103 254150 | ||
ул. Мечникова 16 оф. 4-7 |
пр. Д. Яворницкого 5 |
Halkidiki:Nikiti str. 63088 | +3023750 20330 | ||