






Данные об объекте: №24850
![]() |
Название: | Продажа - Коттедж 450 m² в пригороде Салоник |
| Тип: | Дом | |
| Стадия: | Построенное | |
| Год сдачи: | 2009 |
![]() |
Cтрана: | Греция |
| Регион: | Салоники | |
| Местность: | Салоники/пригород |
![]() |
Кол-во комнат: |
| Площадь: | 450 m² | |
| Площадь участка: | 406 m² |
![]() |
До моря: | 6000 m |
| До аэропорта: | 7 km |
![]() |
|
Кол-во этажей:
3 этажей
Дата последнего изменения:
18-09-2025
|
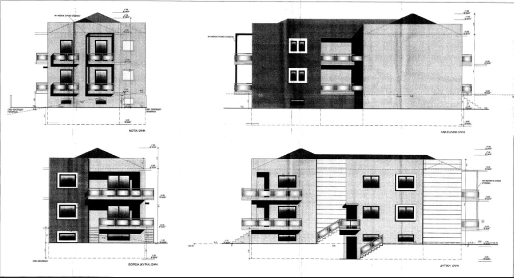
Продаётся частный дом в деревне Трилофо, Салоники, на трёх уровнях по 150 кв. м каждый: А. Этаж, разделённый на 2 квартиры по 75 кв. м каждая. Б. Первый этаж площадью 150 кв. м, который можно разделить на 2 квартиры. В. Подвал-первый этаж площадью 150 кв. м с вспомогательными помещениями - гаражом. Дом выполнен в исключительном качестве и находится в полузавершенном состоянии из бетона, так что его можно завершить по желанию. Участок составляет 406 кв. м. Открывается прекрасный вид на холмы и Термаикосский залив.
Заинтересовал этот либо другой объект? Компания GrekHome предлагает услугу - обзорная поездка в Грецию.
Самый большой выбор недвижимости в Греции:
Обращайтесь и Ваш персональный менеджер поможет сделать Вам правильный выбор!
Киев: |
Днепр: |
Greece: |
|||
|---|---|---|---|---|---|
+38044 223 34 45 |
+38056 789 20 07 |
Saloniki:Halkis st.8 | +302310 591431 | ||
+38097 275 33 33 |
+38098 696 39 79 |
Athens:Nikis st.43 | +302103 254150 | ||
ул. Мечникова 16 оф. 4-7 |
пр. Д. Яворницкого 5 |
Halkidiki:Nikiti str. 63088 | +3023750 20330 | ||
GrekHome 2025 © Все права защищены.
Копирование информации только с разрешения администрации.