





Данные об объекте: №25081
![]() |
Название: | Продажа - Вилла 182 m² на Кассандре (Халкидики) |
| Тип: | Дом | |
| Стадия: | Построенное | |
| Год сдачи: | 2024 |
![]() |
Cтрана: | Греция |
| Регион: | Халкидики | |
| Местность: | Кассандра |
![]() |
Кол-во комнат: | 3 |
| Площадь: | 182 m² | |
| Площадь участка: | 2500 m² |
![]() |
До моря: | 450 m |
| До аэропорта: | 54 km |
![]() |
|
Кладовая:
✓
Бассейн:
✓
Кол-во этажей:
2 этажей
Количество комнат:
Комнаты: 4, Ванные комнаты: 3, Спальни: 3, Туалеты: 1, Кладовая
Дата последнего изменения:
18-09-2025
Камин:
✓
Парковка:
гараж
|
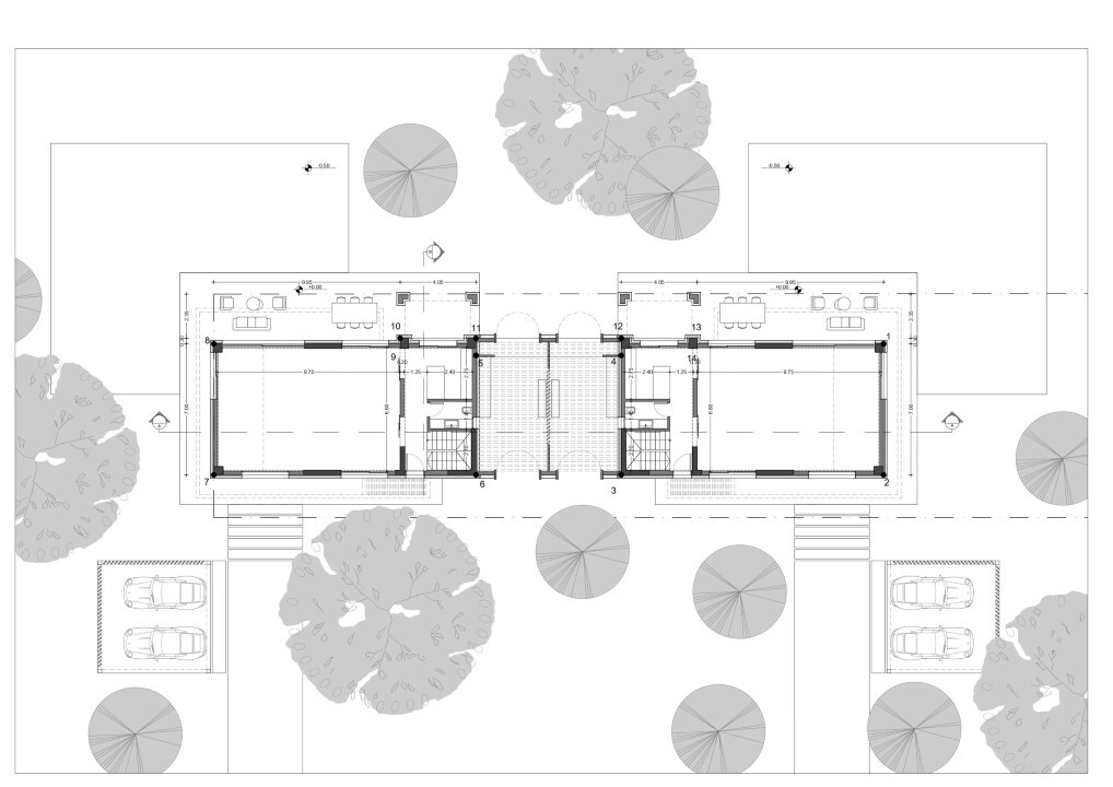
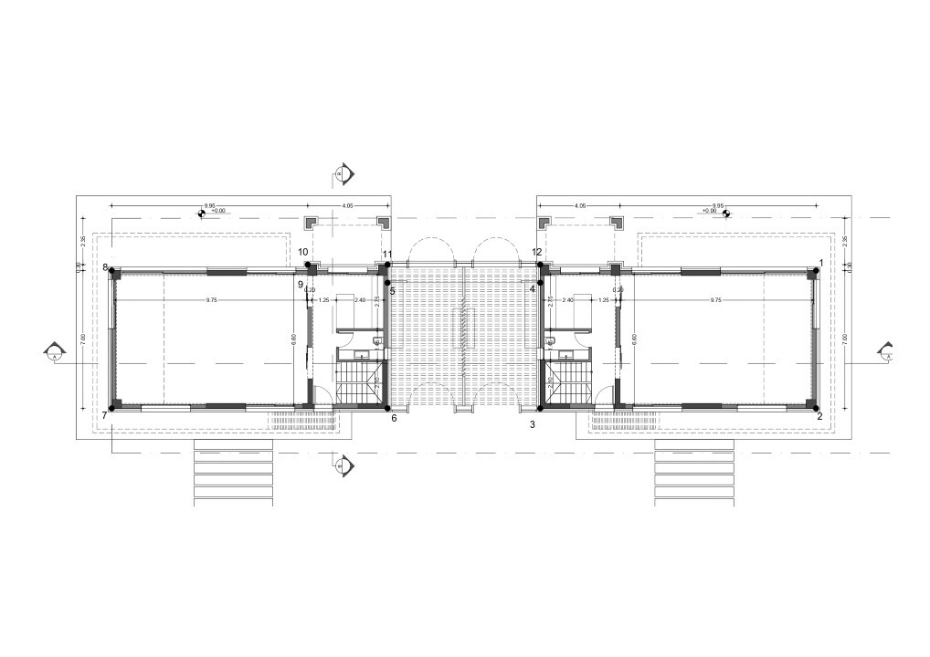
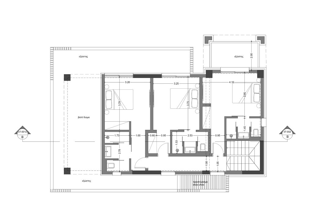
Продается 2-этажная вилла площадью 182 кв.м на полуострове Кассандра, региона Халкидики на стадии строительства. Первый этаж состоит из гостиной, одной кухни, одного санузла. Второй этаж состоит из 3 спальных комнат, 3 душевых комнат. Вилла имеет угловое расположение. Из окон открывается великолепный вид на море, на горы, на лес. У объекта есть солнечные батареи для нагрева воды, камин, кондиционер, тенты, зона барбекю, отопление. У объекта установлена сигнализация. К недвижимости относится парковочное место, сад, гараж. На территории расположен бассейн личного пользования.
Продаются две автономные-роскошные виллы на участке 5,000 кв.м. в Сани, Халкидики, которые находятся на стадии строительства. Каждая вилла имеет площадь 182 кв.м. и разделена на 2 уровня: первый этаж 100 кв.м. и второй этаж 82 кв.м.
Каждая вилла состоит из гостиной, кухни, 3 спален, 4 ванных комнат и кладовой.
На внешней территории каждой виллы есть бассейн 50 кв.м., террасы первого этажа 180 кв.м., террасы второго этажа 42 кв.м., полуоткрытая зона второго этажа 20 кв.м., биоклиматическая пергола с зоной для барбекю 27 кв.м., парковочные места для 2 автомобилей 36 кв.м. и собственный участок 2,500 кв.м.
Расположение идеально для отдыха и беззаботного отпуска. Виллы расположены в природной и спокойной обстановке среди озер и сосновых лесов, с видом на море, озера и гору Олимп.
Каждая биоклиматическая вилла построена из высококачественных европейских материалов. Они имеют нулевое энергопотребление и оснащены внешней теплоизоляцией, автономным напольным отоплением и горячей водой с тепловым насосом в сочетании с солнечной системой, охлаждением и обогревом с VRV (кондиционирование), энергоэффективным камином, алюминиевыми наружными рамами от компании Alumil, пуленепробиваемыми стеклами, сетками, бронированной входной дверью, камерами видеонаблюдения, сигнализацией, спутниковой антенной, системой "умный дом", итальянской и испанской плиткой высшего сорта, мраморными лестницами, кухонной мебелью на выбор (акрил или ламинат), массивными внутренними дверями с алюминиевыми рамами, перилами террас из триплекс-стекла. Также имеется установка для воздухообменника в внутренних помещениях, установка для джакузи и установка для 36 кв.м. фотоэлектрических панелей.
Освещение спроектировано профессиональными архитекторами, чтобы украсить и подчеркнуть эти современные резиденции.
В ванных комнатах встроенные краны для ванны и раковины, встроенные бачки, душевые кабины с триплекс-стеклом, раковины по вашему выбору (кореан или фарфор).
Полуоткрытая многофункциональная зона позволяет создать спортзал с различными удобствами, такими как джакузи. Эта зона уникальна, так как предлагает великолепный вид на море и озера.
На внешней территории есть биоклиматическая пергола с регулируемым освещением (управление с пульта), зона для барбекю с уличной обеденной зоной, рабочей поверхностью и раковиной. Сад спроектирован архитектором, чтобы быть устойчивым, подчеркивая экологичность и экологичность. Включает различные типы деревьев, растений, кустарников, газон, рокарии, освещение и систему орошения с автоматическим поливом. Главные ворота входа ограждения автоматические.
Цена продажи: 1,250,000 евро за виллу Сдача резиденции: декабрь 2024
Заинтересовал этот либо другой объект? Компания GrekHome предлагает услугу - обзорная поездка в Грецию.
Самый большой выбор недвижимости в Греции:
Обращайтесь и Ваш персональный менеджер поможет сделать Вам правильный выбор!
Киев: |
Днепр: |
Greece: |
|||
|---|---|---|---|---|---|
+38044 223 34 45 |
+38056 789 20 07 |
Saloniki:Halkis st.8 | +302310 591431 | ||
+38097 275 33 33 |
+38098 696 39 79 |
Athens:Nikis st.43 | +302103 254150 | ||
ул. Мечникова 16 оф. 4-7 |
пр. Д. Яворницкого 5 |
Halkidiki:Nikiti str. 63088 | +3023750 20330 | ||
GrekHome 2025 © Все права защищены.
Копирование информации только с разрешения администрации.