

























Данные об объекте: №25456
![]() |
Название: | Продажа - Коттедж 285 m² в пригороде Салоник |
| Тип: | Дом | |
| Стадия: | Построенное | |
| Год сдачи: | 1990 |
![]() |
Cтрана: | Греция |
| Регион: | Салоники | |
| Местность: | Салоники/пригород |
![]() |
Кол-во комнат: | 6 |
| Площадь: | 285 m² | |
| Площадь участка: | 420 m² |
![]() |
До моря: | 3000 m |
| До аэропорта: | 9 km |
![]() |
|
Кладовая:
✓
Лифт:
✓
Кол-во этажей:
3 этажей
Количество комнат:
Комнаты: 7, Ванные комнаты: 2, Спальни: 6, Кладовая
Дата последнего изменения:
18-09-2025
Камин:
✓
Парковка:
✓
|
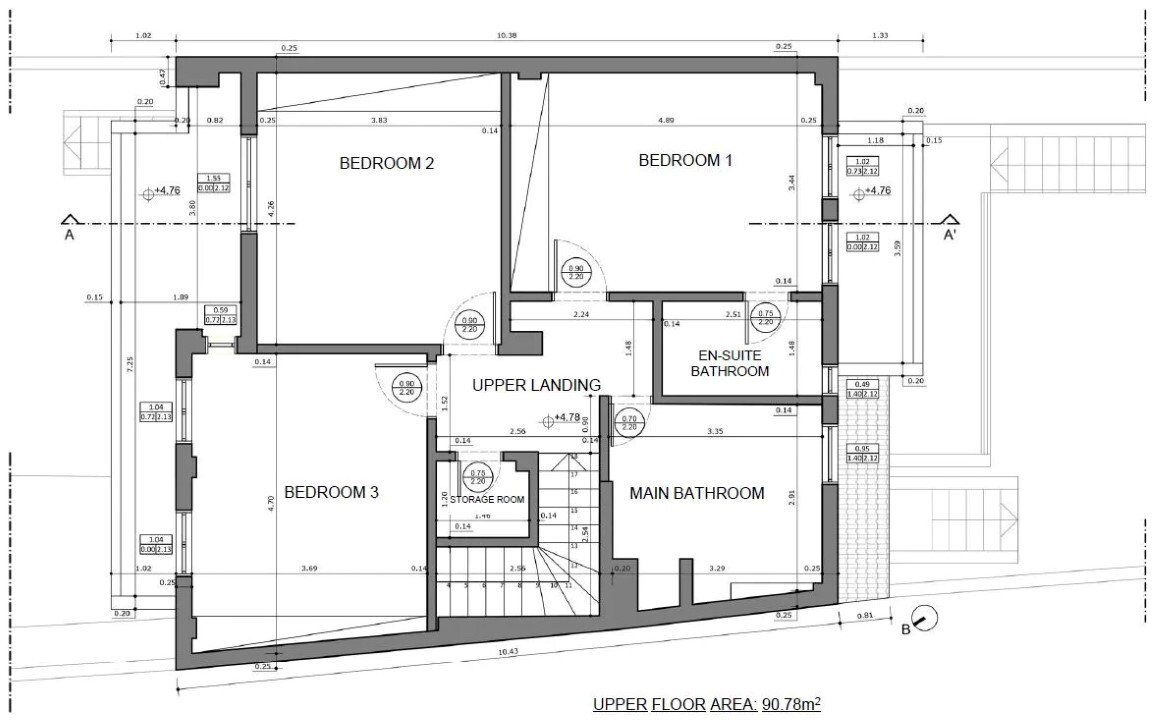
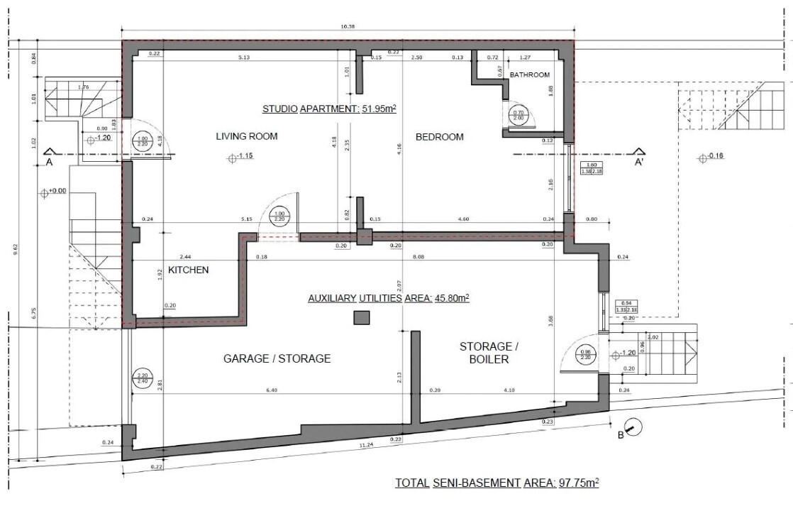
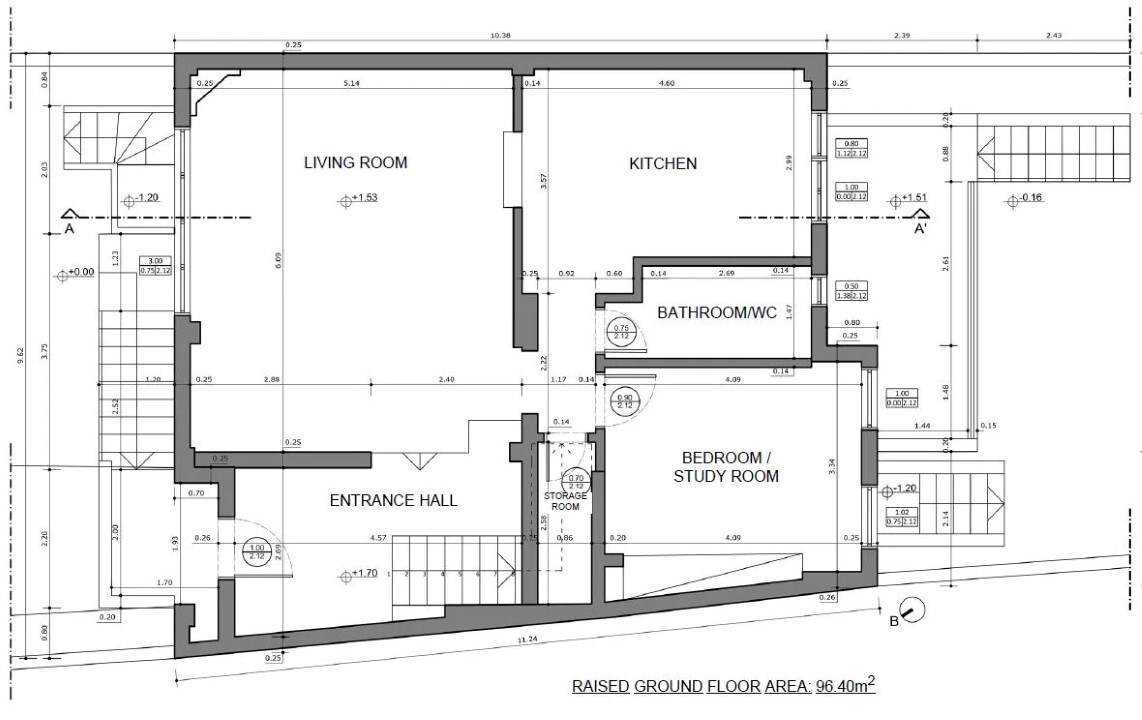
Продается 3-этажный коттедж площадью 285 кв.м в пригороде города Салоники. Полу-первый этаж состоит из 3 спальных комнат, гостиной с кухней, одной кухни, одной душевой комнаты, одной кладовой. Второй этаж состоит из 2 спальных комнат, одной кухни, одной ванной комнаты. Третий этаж состоит из одной спальной комнаты. У объекта есть солнечные батареи для нагрева воды, камин, кондиционер, отопление. В здании расположен лифт. У объекта установлена сигнализация. К недвижимости относится парковочное место.
Заинтересовал этот либо другой объект? Компания GrekHome предлагает услугу - обзорная поездка в Грецию.
Самый большой выбор недвижимости в Греции:
Обращайтесь и Ваш персональный менеджер поможет сделать Вам правильный выбор!
Киев: |
Днепр: |
Greece: |
|||
|---|---|---|---|---|---|
+38044 223 34 45 |
+38056 789 20 07 |
Saloniki:Halkis st.8 | +302310 591431 | ||
+38097 275 33 33 |
+38098 696 39 79 |
Athens:Nikis st.43 | +302103 254150 | ||
ул. Мечникова 16 оф. 4-7 |
пр. Д. Яворницкого 5 |
Halkidiki:Nikiti str. 63088 | +3023750 20330 | ||
GrekHome 2025 © Все права защищены.
Копирование информации только с разрешения администрации.