






















Данные об объекте: №25567
![]() |
Название: | Продажа - Таунхаус 111 m² в центральной Греции |
| Тип: | Дом | |
| Стадия: | Построенное |
![]() |
Cтрана: | Греция |
| Регион: | Другое | |
| Местность: | Центральная Греция |
![]() |
Кол-во комнат: | 2 |
| Площадь: | 111 m² |
![]() |
До моря: | 5 m |
| До аэропорта: | 51 km |
![]() |
|
Кол-во этажей:
2 этажей
Количество комнат:
Комнаты: 3, Ванные комнаты: 1, Спальни: 2
Дата последнего изменения:
18-09-2025
Парковка:
✓
|
Продается таунхаус площадью 111 кв.м в центральной Греции. Таyнхаус расположен на 2 уровнях. Третий этаж состоит из одной спальной комнаты. Четвертый этаж состоит из одной спальной комнаты, гостиной, одной кухни, одной ванной комнаты. Из окон открывается великолепный вид на море. Недвижимость продается с мебелью. К недвижимости относится парковочное место.
Предлагаем вашему вниманию двухэтажные апартаменты с садом частного использования в роскошном комплексе коттеджей на берегу моря, окруженные прекрасной зеленью с панорамным видом на залив Эвиан. Данный комплекс находится в районе Фтиотида, всего лишь полтора часа езды от Афинского Аэропорта. Архитектурное проектирование данного проекта сочетает эстетику и функциональность, а так же имеется беспрепятственный вид на морской пейзаж, сад и индивидуальное использование террасы. Строение данного комплекса сочетает как внутренний уют апартаментов, так и внешний комфорт, который обеспечит вам прекрасный отдых на свежем воздухе у прекрасных морских берегов, либо в сосновом лесу. В пешей доступности расположен обустроенный пляж и причал напротив апартаментов.
Близкое расположение к соседним гостиницам, обеспечивает абсолютный комфорт и доступность ко всей необходимой инфраструктуре. Наличие кафе, баров, ресторанов, и минимаркетов с прекрасным обслуживанием, будут прекрасным дополнением вашему отдыху, так же можно позаниматься различными видами спорта.
Данное место это идеальный вариант как для летнего, так и для зимнего времени года. Комплекс расположен неподалеку от зимних курортов Арахова и Карпениси. А в летнее время года близкое расположение причала, позволит совершить незабываемые морские прогулки на яхте и посещение соседних пляжей с золотым песком островов Лихониса и Северной Эвии.
Данный комплекс состоит из 5 самостоятельных строений, в которых мы так же предлагаем вашему вниманию подобные таунхаусы и квартиры
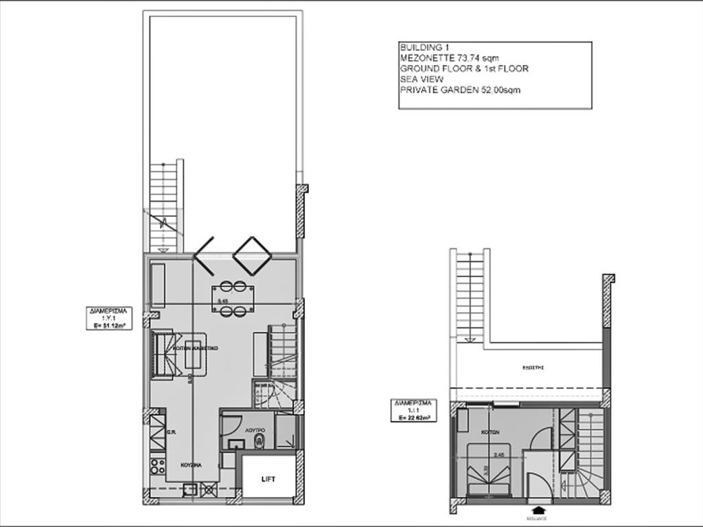
Здание 1:
Таунхаус 1 - площадью 111кв. м, 3 спальни с терассой площадью 30кв.м, 2 парковочных места, стоимоcть - 300.000евро
Таунхаус 2 - площадью 110кв. м, 3 спальни с терассой площадью 30кв.м, 2 парковочных места, стоимоcть - 300.000евро
Здание 1B:
Таунхаус - площадью 111кв. м, 2 спальни, 2 парковочных места, стоимоcть - 373.000евро
Квартира - площадью 112кв. м, 2 спальни, 2 парковочных места стоимость - 405.000евро
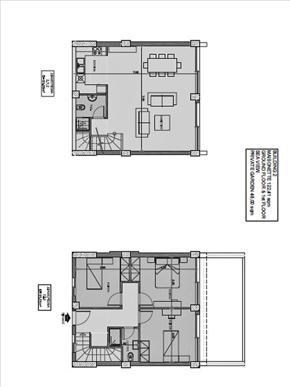
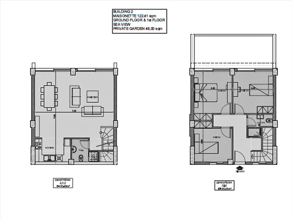
Здание 2:
Таунхаус - площадью 170 кв. м, 4 спальни с терассой площадью 74кв.м, 2 парковочных места, стоимоcть - 480.000евро
Квартира - площадью 107кв. м, 2 спальни, 1 парковочное место стоимость - 395.000евро
Здание 3:
Квартира - площадью 62кв. м, 1 спальня с терассой площадью 27кв.м, 1 парковочное место стоимость - 160.000евро
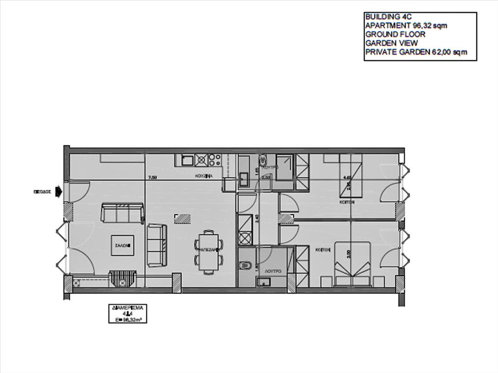
Здание 4:
Таунхаус - площадью 156 кв. м, 2- 4 спальни с видом на морской пейзаж, 2 парковочных места, стоимоcть - 480.000евро
Квартира Β - площадью 119кв. м, 3 спальни с видом на море, 2 парковочных места стоимость - 405.000евро
Квартира ST - площадью 119кв. м, 3 спальни с видом на море, 2 парковочных места стоимость - 362.000евро
Здание 5:
Квартира A - площадью 133кв. м, 3 спальни с видом на море и терассой площадью 189кв.м , 2 парковочных места стоимость - 480.000евро
Квартира G - площадью 107кв. м, 2 спальни с видом на море и терассой площадью 89кв.м , 1 парковочное место стоимость - 480.000евро
Квартира G - площадью 65кв. м, 1 спальня, 1 парковочное место стоимость - 160.000евро
При взносе 30% от стоимости объекта возможно рассрочка на 60 месяцев под 5% .
Налог на преход права собственности 3,09%
Заинтересовал этот либо другой объект? Компания GrekHome предлагает услугу - обзорная поездка в Грецию.
Самый большой выбор недвижимости в Греции:
Обращайтесь и Ваш персональный менеджер поможет сделать Вам правильный выбор!
Киев: |
Днепр: |
Greece: |
|||
|---|---|---|---|---|---|
+38044 223 34 45 |
+38056 789 20 07 |
Saloniki:Halkis st.8 | +302310 591431 | ||
+38097 275 33 33 |
+38098 696 39 79 |
Athens:Nikis st.43 | +302103 254150 | ||
ул. Мечникова 16 оф. 4-7 |
пр. Д. Яворницкого 5 |
Halkidiki:Nikiti str. 63088 | +3023750 20330 | ||
GrekHome 2025 © Все права защищены.
Копирование информации только с разрешения администрации.