




















Данные об объекте: №26168
![]() |
Название: | Продажа - Коттедж 380 m² в пригороде Салоник |
| Тип: | Дом | |
| Стадия: | Построенное | |
| Год сдачи: | 2010 |
![]() |
Cтрана: | Греция |
| Регион: | Салоники | |
| Местность: | Салоники/пригород |
![]() |
Кол-во комнат: | 4 |
| Площадь: | 380 m² | |
| Площадь участка: | 5000 m² |
![]() |
До моря: | 6000 m |
| До города: | 0,6 km | |
| До аэропорта: | 9 km |
![]() |
|
Кладовая:
✓
Лифт:
✓
Бассейн:
✓
Кол-во этажей:
3 этажей
Количество комнат:
Комнаты: 6, Ванные комнаты: 4, Спальни: 4, Кладовая
Дата последнего изменения:
18-09-2025
Камин:
✓
Парковка:
✓
|
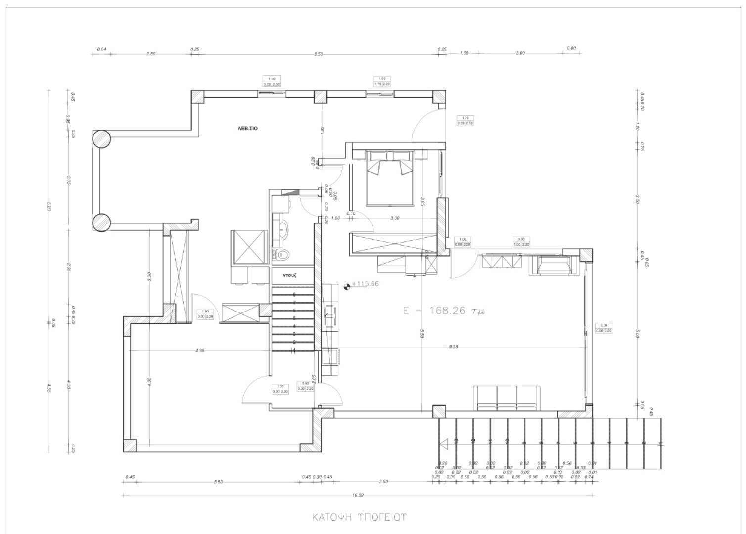
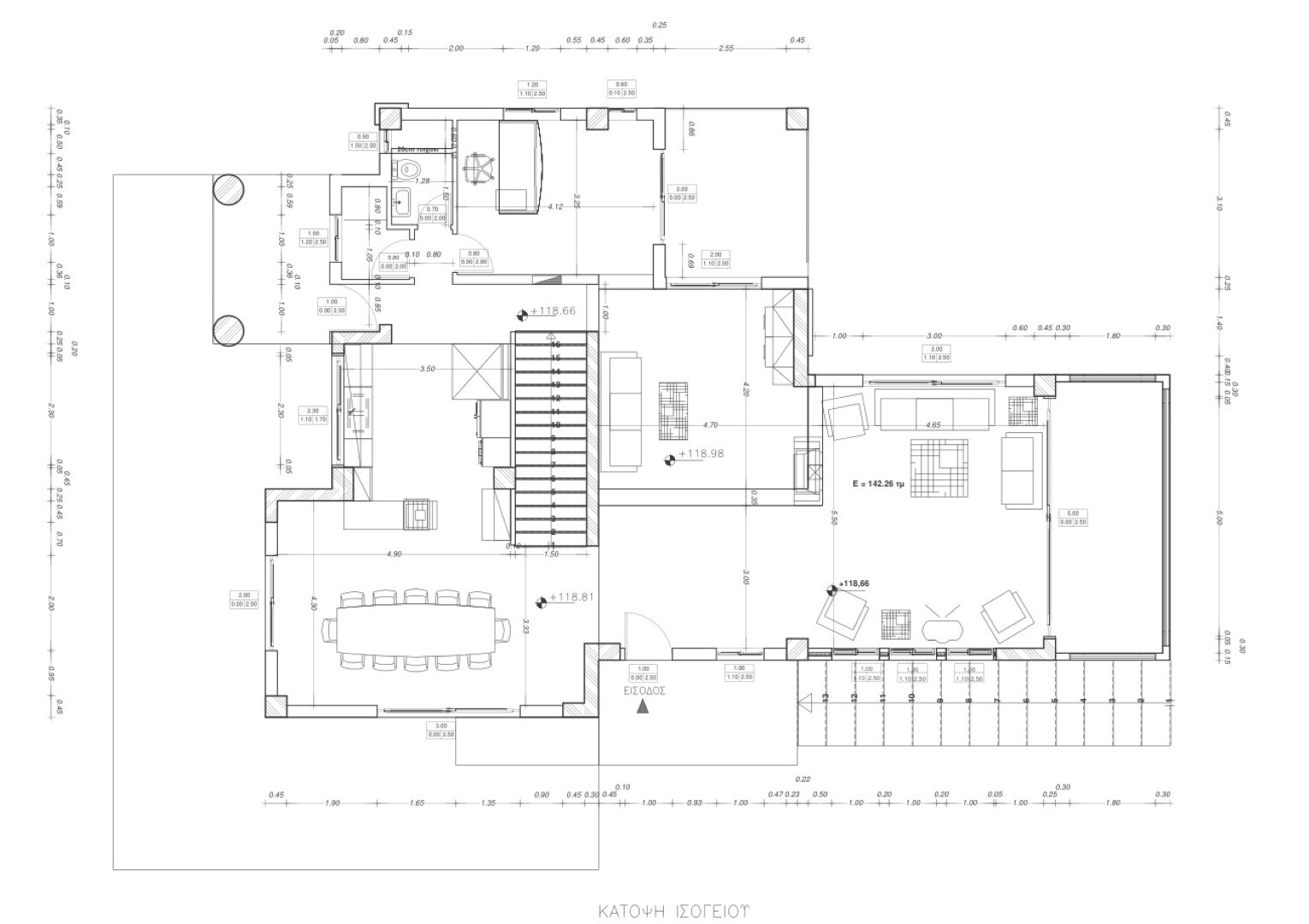
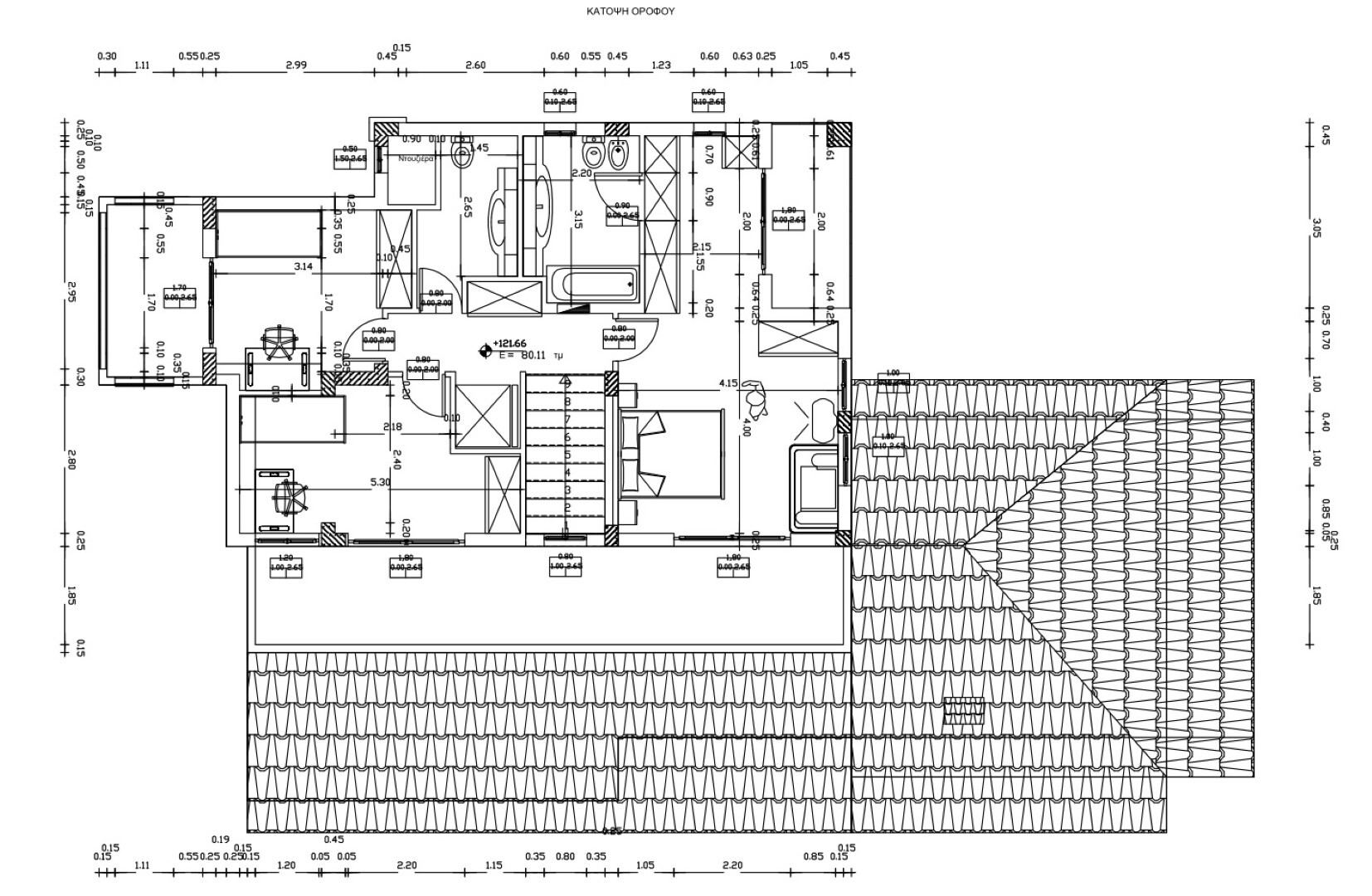
Продается 3-этажный коттедж площадью 380 кв.м в пригороде города Салоники. Цокольный этаж состоит из одной спальной комнаты, гостиной с кухней, одной душевой комнаты, одной кладовой. Первый этаж состоит из гостиной, одной кухни, одной душевой комнаты, одной кладовой, одного офиса. Второй этаж состоит из 3 спальных комнат, одной ванной комнаты, одной душевой комнаты. Из окон открывается великолепный вид на море, на город. У объекта есть солнечные батареи для нагрева воды, камин, кондиционер, отопление. Недвижимость продается с мебелью. В здании расположен лифт. У объекта установлена сигнализация. К недвижимости относится парковочное место, сад. На территории расположен бассейн личного пользования.
Район: Плаяри
Заинтересовал этот либо другой объект? Компания GrekHome предлагает услугу - обзорная поездка в Грецию.
Самый большой выбор недвижимости в Греции:
Обращайтесь и Ваш персональный менеджер поможет сделать Вам правильный выбор!
Киев: |
Днепр: |
Greece: |
|||
|---|---|---|---|---|---|
+38044 223 34 45 |
+38056 789 20 07 |
Saloniki:Halkis st.8 | +302310 591431 | ||
+38097 275 33 33 |
+38098 696 39 79 |
Athens:Nikis st.43 | +302103 254150 | ||
ул. Мечникова 16 оф. 4-7 |
пр. Д. Яворницкого 5 |
Halkidiki:Nikiti str. 63088 | +3023750 20330 | ||
GrekHome 2025 © Все права защищены.
Копирование информации только с разрешения администрации.