





























Данные об объекте: №26671
![]() |
Название: | Продажа - Двухуровневая квартира 179 m² в Салониках |
| Тип: | Дом | |
| Стадия: | Построенное | |
| Год сдачи: | 2024 |
![]() |
Cтрана: | Греция |
| Регион: | Салоники |
![]() |
Кол-во комнат: | 3 |
| Площадь: | 179 m² |
![]() |
До моря: | 250 m |
| До аэропорта: | 10 km |
![]() |
|
Кладовая:
✓
Лифт:
✓
Этаж:
4 этаж
Кол-во этажей:
2 этажей
Количество комнат:
Комнаты: 4, Ванные комнаты: 3, Спальни: 3, Кладовая
Дата последнего изменения:
18-09-2025
Камин:
✓
Парковка:
гараж
|
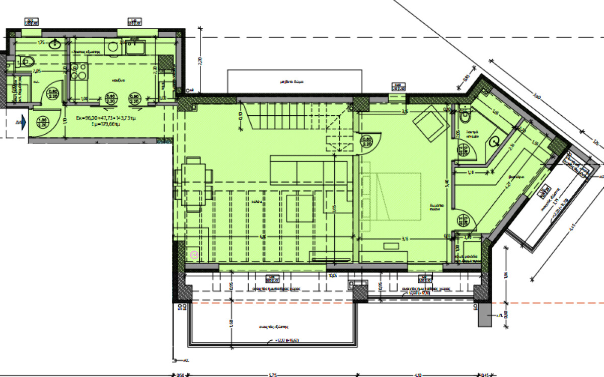
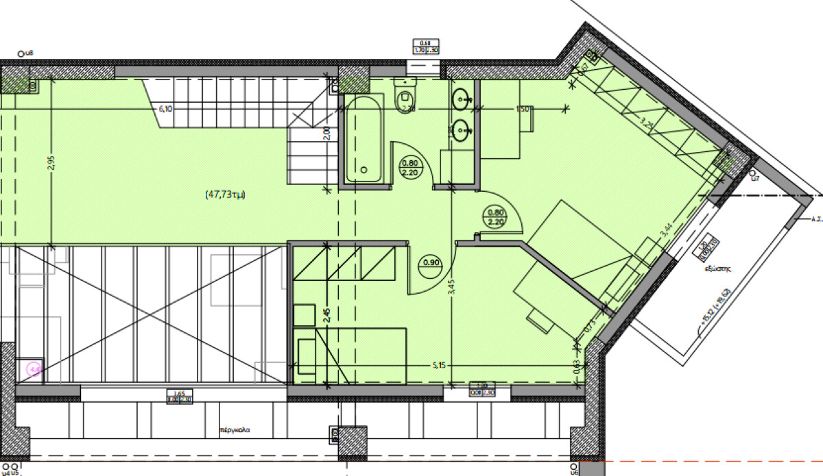
Продается дуплекс площадью 179 кв.м в Салониках. Дуплекс расположен на 2 уровнях. Пятый этаж состоит из одной спальной комнаты, гостиной, одной кухни, одной ванной комнаты, одной душевой комнаты, одной кладовой. Шестой этаж состоит из 2 спальных комнат, одной ванной комнаты. У объекта есть камин, отопление. В здании расположен лифт. К недвижимости относится парковочное место, гараж.
Заинтересовал этот либо другой объект? Компания GrekHome предлагает услугу - обзорная поездка в Грецию.
Самый большой выбор недвижимости в Греции:
Обращайтесь и Ваш персональный менеджер поможет сделать Вам правильный выбор!
Киев: |
Днепр: |
Greece: |
|||
|---|---|---|---|---|---|
+38044 223 34 45 |
+38056 789 20 07 |
Saloniki:Halkis st.8 | +302310 591431 | ||
+38097 275 33 33 |
+38098 696 39 79 |
Athens:Nikis st.43 | +302103 254150 | ||
ул. Мечникова 16 оф. 4-7 |
пр. Д. Яворницкого 5 |
Halkidiki:Nikiti str. 63088 | +3023750 20330 | ||
GrekHome 2025 © Все права защищены.
Копирование информации только с разрешения администрации.