




Данные об объекте: №27028
![]() |
Название: | Продажа - Квартира 82 m² в Салониках |
| Тип: | Квартира | |
| Стадия: | Построенное | |
| Год сдачи: | 2025 |
![]() |
Cтрана: | Греция |
| Регион: | Салоники |
![]() |
Кол-во комнат: | 2 |
| Площадь: | 82 m² |
![]() |
До моря: | 2200 m |
| До аэропорта: | 16,5 km |
![]() |
|
Кладовая:
✓
Лифт:
✓
Этаж:
1 этаж
Кол-во этажей:
7 этажей
Количество комнат:
Комнаты: 3, Ванные комнаты: 1, Спальни: 2, Кладовая
Дата последнего изменения:
18-09-2025
Парковка:
✓
|
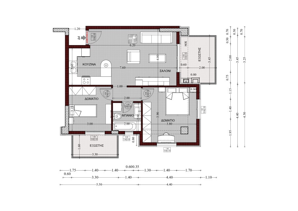
Продается квартира площадью 82 кв.м в Салониках на стадии строительства. Квартира расположена на втором этаже и состоит из 2 спальных комнат, гостиной с кухней, одной ванной комнаты. Квартира имеет угловое расположение. Из окон открывается вид на город. У объекта есть отопление. В здании расположен лифт. У объекта установлена сигнализация. К недвижимости относится парковочное место.
Здание будет готово в декабре 2025 года. Во всех квартирах имеются индивидуальные парковочные места, а также кладовая в подвале здания. Каждая квартира энергоэффективна (A+) и оснащена системой внешней теплоизоляции, отличной звукоизоляцией, автономным подогревом пола от индивидуального газового котла, предварительной установкой для солнечной системы горячего водоснабжения, системой пожарной сигнализации, внешними рамами из ПВХ с двойным остеклением, внутренними рамами разных цветов, усиленной входной дверью, предварительной установкой для кондиционера, предварительной установкой для охранной сигнализации, предварительной установкой для спутниковой антенны, плиткой для пола и стен из Италии или Испании и высококачественной кухонной мебелью.
Заинтересовал этот либо другой объект? Компания GrekHome предлагает услугу - обзорная поездка в Грецию.
Самый большой выбор недвижимости в Греции:
Обращайтесь и Ваш персональный менеджер поможет сделать Вам правильный выбор!
Киев: |
Днепр: |
Greece: |
|||
|---|---|---|---|---|---|
+38044 223 34 45 |
+38056 789 20 07 |
Saloniki:Halkis st.8 | +302310 591431 | ||
+38097 275 33 33 |
+38098 696 39 79 |
Athens:Nikis st.43 | +302103 254150 | ||
ул. Мечникова 16 оф. 4-7 |
пр. Д. Яворницкого 5 |
Halkidiki:Nikiti str. 63088 | +3023750 20330 | ||
GrekHome 2025 © Все права защищены.
Копирование информации только с разрешения администрации.