























Данные об объекте: №29149
![]() |
Название: | Продажа - Земельный участок 40000 m² на о. Корфу |
| Тип: | Земельный участок | |
| Стадия: | Построенное |
![]() |
Cтрана: | Греция |
| Регион: | о. Корфу |
![]() |
Кол-во комнат: |
| Площадь участка: | 40000 m² |
![]() |
До моря: | 6000 m |
| До города: | 1,5 km | |
| До аэропорта: | 26 km |
![]() |
|
Дата последнего изменения:
18-09-2025
|
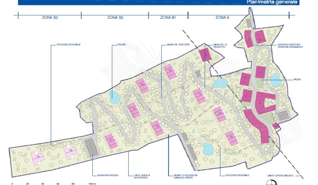
Продается огорожденный земельный участок площадью 40000 кв.м. на острове Корфу. На территории есть: колодец. Земельный участок имеет возможность получения разрешения на строительство. С возможностью строительства на 14222 кв.м.
Продается земельный участок площадью 40000 кв.м. на острове Корфу в западной части Греции.
На территории подведена вода, подведено электричество, с возможностью построить 14222 кв.м..
Имеет вид на море и на город. Архитекторами и инженер строителями разработан проект который возможно осуществить на данном участке. Есть разрешение полученное с государственного учреждения о возможности строительства. Проект включает комплекс построенных вилл с бассейнами, также возможно построить гостиницу. Земельный участкок богат камнем, тем самым его можно использовать для строительства вилл и тем что на нем есть колодец. Всего в 6 километрах от участка расположен один из популярнейших пляжей острова, который очаровывает своей живописной окружностью. А также есть возможность приобрести и соседние участки тем самым увеличить еще площадь участка. Можно приобрести участок вместе с готовым проектом за 1.500.000 евро.
Заинтересовал этот либо другой объект? Компания GrekHome предлагает услугу - обзорная поездка в Грецию.
Самый большой выбор недвижимости в Греции:
Обращайтесь и Ваш персональный менеджер поможет сделать Вам правильный выбор!
Киев: |
Днепр: |
Greece: |
|||
|---|---|---|---|---|---|
+38044 223 34 45 |
+38056 789 20 07 |
Saloniki:Halkis st.8 | +302310 591431 | ||
+38097 275 33 33 |
+38098 696 39 79 |
Athens:Nikis st.43 | +302103 254150 | ||
ул. Мечникова 16 оф. 4-7 |
пр. Д. Яворницкого 5 |
Halkidiki:Nikiti str. 63088 | +3023750 20330 | ||